Alle Fotos anzeigen

3-Zimmer-Eigentumswohnung mit zwei Balkonen und TG-Stellplatz im beliebten unteren Ostviertel

37073 Göttingen
Wohnung
340.000 € Kaufpreis
100 m² Wohnfläche
3 Zimmer
Wohnfläche 100 m²
Baujahr 1973
Zimmer 3
Objektbeschreibung
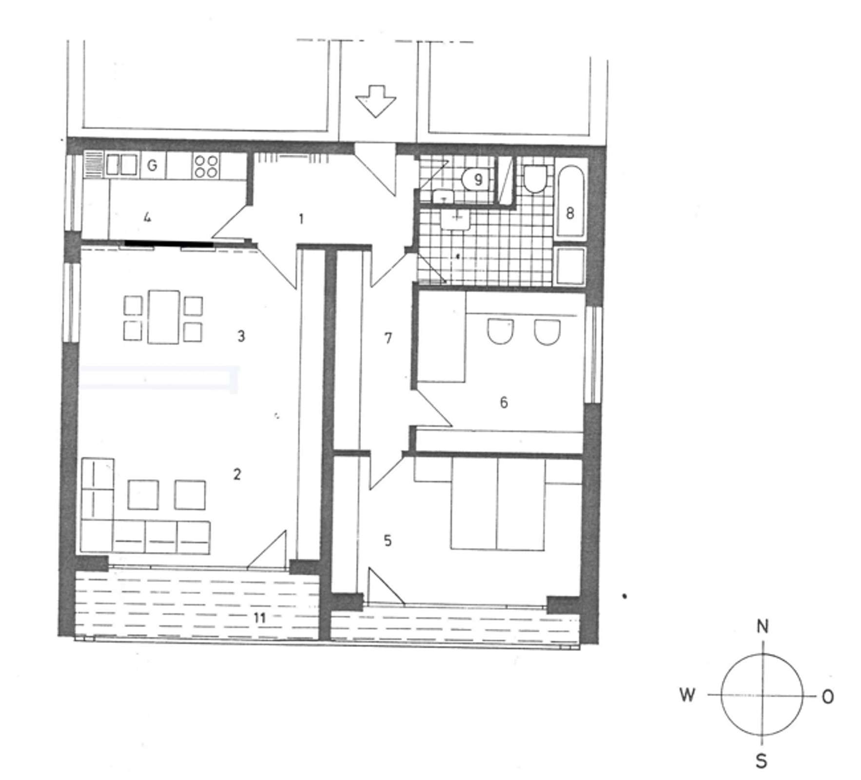
Diese attraktive 3-Zimmer-Wohnung, im 1. Obergeschoss eines 1973 erbauten Mehrfamilienhauses gelegen, überzeugt durch einen klar strukturierten Grundriss, helle Räume und großzügige Außenflächen.
Die freiwerdende Wohnung bietet auf ca. 100,73 m² Wohnfläche ideale Voraussetzungen für Paare, kleine Familien und anspruchsvolle Eigennutzer. Der zentrale Wohnbereich ist großzügig gestaltet und verfügt über zwei direkte Zugänge zu einem Balkon.
Zwei weitere Zimmer sind über einen Flur, mit praktischem Einbauschrank, erreichbar und stehen als Schlaf-, Kinder- oder Arbeitszimmer zur Verfügung. Die separate Küche ist gut geschnitten und ermöglicht komfortables Arbeiten sowie ausreichend Stauraum. Das Badezimmer ist funktional angeordnet und wird durch ein separates Gäste-WC ergänzt – ein klarer Pluspunkt für Besucher und den täglichen Komfort.
Ein besonderes Highlight der Wohnung sind die beiden, teilweise überdachten Balkone mit herrlicher Aussicht und vielfältigen Nutzungsmöglichkeiten – ob zum Entspannen, für gesellige Abende oder als private Ruhe-Oase unter freiem Himmel.
Ein Kellerraum sowie ein Tiefgaragenstellplatz gehören ebenfalls zu diesem Immobilienangebot.
Der Hausgemeinschaft steht ein Freizeitbereich mit Schwimmbecken und Sauna zur Verfügung. Für die Benutzung der Sauna muss eine kleine zusätzliche Gebühr entrichtet werden. Darüber hinaus gibt es in dem Haus Unterstellmöglichkeiten für Fahrräder sowie einen Wasch-/Trockenraum. Die große, gepflegte Gartenanlage kann ebenfalls gemeinschaftlich genutzt werden.
Ausstattung
- Einbauküche
- Badzimmer mit Wanne und Dusche
- Gäste-WC
- zwei Balkone
- Kellerraum
- Tiefgaragenstellplatz
- Schwimmbad und Sauna
- Gemeinschaftsgarten
- Personenaufzug
Lagebeschreibung
Diese ansprechende Eigentumswohnung befindet sich im unteren Ostviertel mit der perfekten Balance zwischen urbanem Leben und einer ruhigen Wohngegend.
Die Innenstadt, das Deutsche Theater, das Max-Planck-Gymnasium, der Botanische Garten, der Uni-Campus, sowie der Bahnhof sind bequem und fußläufig erreichbar.
Diese zentrale Position in einem der begehrtesten Viertel Göttingens bietet somit beste Voraussetzungen für angenehmes und komfortables Wohnen.
Lage
Hinweis
Provision vom Käufer: 3,57% vom Kaufpreis inkl. MwSt.